affaire — n° 1207_LEY
procédure — Concours ouvert, 2e prix
partenaire(s) — -
localisation — Leysin, VD
catégorie — Bâtiment contexte
acronyme — Foyer Leysin
année — 2012
équipe — R. Niogret, T. Bolliger, N. Mongé, S. Hirtz, S Djilani, T. Bourgade
FOYER LEYSIN
Le nouvel établissement socio-éducatif s’inspire de sa situation singulière au sein du village de Leysin et de son histoire. En effet, la parcelle mise à disposition par la commune se trouve à la croisée de deux axes : un axe horizontal qui correspond à la rue du village qui mène au cœur de Leysin et ; un axe diagonal, celui du viaduc sur lequel circule le train à crémaillère qui, dès 1897 reliait Aigle aux sanatoriums de Leysin installées dans les hauteurs du village. Le bâtiment veut établir des liens avec les deux directions territoriales décrites ci-dessus. D’une part, le bâtiment s’inscrit dans l’ordre et la typologie de la rue du village, horizontale dans un site en pente. La route qui suit la courbe de niveau est bordée par un système de murs de soutènement qui permet de créer des plateformes pour les habitations. C’est, entre, contre et devant ces murs que va s’inscrire le nouveau centre. D’autre part, l’axe formé par le viaduc rappelle la présence des anciens sanatoriums aujourd’hui devenus centres hôteliers ou pédagogiques. Spatialement, il fédère un vaste dégagement qui oriente les vues vers le panorama des Dents du Midi et celui des Alpes Vaudoises. Le bâtiment, construit en deux volumes décalés privilégie des vues vers ces panoramas.
Plan masse


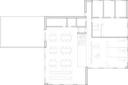
Plan rez-de-chaussée
Plan 2e étage
Plan 1e étage
Plan sous-sol






Coupes et façades



Schéma, implantation par rapport aux murs de soutènement
Schéma, espaces extérieurs
Schéma, split level


Différentes vues intérieures
Le nouvel établissement socio-éducatif s’inspire de sa situation singulière au sein du village de Leysin et de son histoire. En effet, la parcelle mise à disposition par la commune se trouve à la croisée de deux axes : un axe horizontal qui correspond à la rue du village qui mène au cœur de Leysin et ; un axe diagonal, celui du viaduc sur lequel circule le train à crémaillère qui, dès 1897 reliait Aigle aux sanatoriums de Leysin installées dans les hauteurs du village. Le bâtiment veut établir des liens avec les deux directions territoriales décrites ci-dessus. D’une part, le bâtiment s’inscrit dans l’ordre et la typologie de la rue du village, horizontale dans un site en pente. La route qui suit la courbe de niveau est bordée par un système de murs de soutènement qui permet de créer des plateformes pour les habitations. C’est, entre, contre et devant ces murs que va s’inscrire le nouveau centre. D’autre part, l’axe formé par le viaduc rappelle la présence des anciens sanatoriums aujourd’hui devenus centres hôteliers ou pédagogiques. Spatialement, il fédère un vaste dégagement qui oriente les vues vers le panorama des Dents du Midi et celui des Alpes Vaudoises. Le bâtiment, construit en deux volumes décalés privilégie des vues vers ces panoramas.
affaire — n° 1207_LEY
procédure — Concours ouvert, 2e prix
partenaire(s) — -
localisation — Leysin, VD
catégorie — Bâtiment contexte
acronyme — Foyer Leysin
année — 2012
équipe — R. Niogret, T. Bolliger, N. Mongé, S. Hirtz, S Djilani, T. Bourgade

Plan masse

Plan rez-de-chaussée



Plan 2e étage
Plan 1e étage
Plan sous-sol



Coupes et façades



Schéma, implantation par rapport aux murs de soutènement
Schéma, espaces extérieurs
Schéma, split level


Différentes vues intérieures