affaire — n° 2223_TRO
procédure — Concours sur présélection
partenaire(s) — Ycra - Ratio Bois
localisation — Troinex, GE
catégorie — Construction dans l'existant
acronyme — Troinex
année — 2023
équipe — R. Niogret, N. Mongé, T. Bolliger, S. Hirtz, L. Kritzinger, J. Jobin, Z. Gehin
FERME DE LA CULTURE À TROINEX
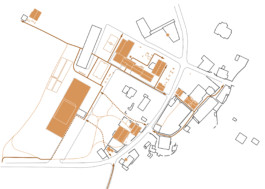
Les deux corps de ferme font partie du tissu historique de Troinex, le projet souhaite alors s’inscrire dans l’existant en tissant des liens avec son contexte hérité, à la fois patrimonial et paysager. De l’extérieur, le projet est pratiquement invisible s’inscrivant dans une démarche proche du « as found » chère aux Smithson : voir, chérir et accompagner ce qui est déjà là. Pour autant, le projet prévoit une programmation intérieure ambitieuse, flexible et adaptée aux usages, basée sur des techniques de construction en bois contemporaines. Pour cohabiter avec le patrimoine intérieur de la grande ferme à sauvegarder, « une maison dans la maison » est insérée, produisant trois salles hybrides à l’intérieur et une bande d’outils à la portée de chaque étage dans l’interstice des murs existants et des nouveaux murs. Les meurtrières anciennement dédiées à la ventilation seront réactivées au profit de la lumière. Parallèlement, la petite ferme baptisée ici l’auberge des artistes, aura vocation à recevoir les villageois·es. C’est ici que l’on trouvera naturellement l’accueil au site, le café et les ateliers des artistes.

Plan masse

Schéma, patrimoine
Schéma, traverses
Schéma, espaces et motifs de végétation

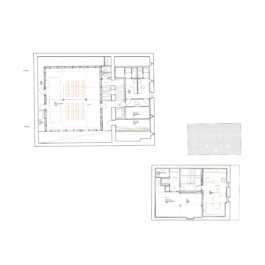
Plan rez-de-chaussée et aménagements extérieurs
Accueil
Ruelle de village


Coupe constructive
Détails, rénovation, récupération des eaux et plancher

Schéma, approche structurelle et phases constructives
Schéma, conservation de l’existant
Schéma thermique
Schéma, circulation et affectation

Plan 1e étage
Plan 2e étage

La grande ferme, élévation
L’auberge des artistes et la dépendance, élévation

La grande ferme, élévation, nord-est
L’auberge des artistes et la dépendance, élévation
La grande ferme, coupe
L’auberge des artistes et la dépendance, coupe

La bibliothèque
La maison dans la maison
Le café des artistes
Les ateliers

La grande ferme et son jardin intime
Les deux corps de ferme font partie du tissu historique de Troinex, le projet souhaite alors s’inscrire dans l’existant en tissant des liens avec son contexte hérité, à la fois patrimonial et paysager. De l’extérieur, le projet est pratiquement invisible s’inscrivant dans une démarche proche du « as found » chère aux Smithson : voir, chérir et accompagner ce qui est déjà là. Pour autant, le projet prévoit une programmation intérieure ambitieuse, flexible et adaptée aux usages, basée sur des techniques de construction en bois contemporaines. Pour cohabiter avec le patrimoine intérieur de la grande ferme à sauvegarder, « une maison dans la maison » est insérée, produisant trois salles hybrides à l’intérieur et une bande d’outils à la portée de chaque étage dans l’interstice des murs existants et des nouveaux murs. Les meurtrières anciennement dédiées à la ventilation seront réactivées au profit de la lumière. Parallèlement, la petite ferme baptisée ici l’auberge des artistes, aura vocation à recevoir les villageois·es. C’est ici que l’on trouvera naturellement l’accueil au site, le café et les ateliers des artistes.
affaire — n° 2223_TRO
procédure — Concours sur présélection
partenaire(s) — Ycra - Ratio Bois
localisation — Troinex, GE
catégorie — Construction dans l'existant
acronyme — Troinex
année — 2023
équipe — R. Niogret, N. Mongé, T. Bolliger, S. Hirtz, L. Kritzinger, J. Jobin, Z. Gehin

Plan masse

Schéma, patrimoine

Schéma, traverses

Schéma, espaces et motifs de végétation

Plan rez-de-chaussée et aménagements extérieurs

Accueil

Ruelle de village

Coupe constructive




Détails, rénovation, récupération des eaux et plancher

Schéma, approche structurelle et phases constructives
Schéma, conservation de l’existant

Schéma thermique

Schéma, circulation et affectation

Plan 1e étage

Plan 2e étage

La grande ferme, élévation

L’auberge des artistes et la dépendance, élévation

La grande ferme, élévation, nord-est

L’auberge des artistes et la dépendance, élévation

La grande ferme, coupe

L’auberge des artistes et la dépendance, coupe

La bibliothèque

La maison dans la maison

Le café des artistes

Les ateliers

La grande ferme et son jardin intime