affaire — n° 1924_SAT
procédure — Mandat direct
partenaire(s) — -
localisation — Satigny, GE
catégorie — Quartier et Voisinage
acronyme — Pôle Satigny gare
année — 2019
équipe — R.Niogret, T.Bolliger, N. Mongé, S. Hirtz, T. Laurans
PÔLE SATIGNY GARE
Ce projet est celui d’une gare de campagne qui a vu son activité journalière s’intensifier au fur et à mesure que la ville se rapprochait. Le projet du pôle gare doit alors répondre à divers enjeux. Il dynamise le centre et accompagne la densification tout en conservant le caractère rural de son environnement.
La proposition s’inspire de l’architecture locale faite de gabarits modestes et de percées visuelles dans le but de s’intégrer au tissu villageois caractéristique de Satigny. Le projet s’inscrit dans une dynamique de renforcement des espaces verts et cordons boisés afin de créer une continuité biodiversitaire. Les surfaces imperméables sont réduites au maximum afin d’améliorer l’infiltration des eaux et le développement de la végétation
Également, les systèmes de mobilité sont prolongés et renforcés. L’arrivée des bus est repensée de façon à activer l’extrémité ouest du site sans créer de conflit avec la place de la gare. Celle-ci est activée par un bâtiment ruche proposant des activités multiples comme un commerce de proximité, des locaux pour les entreprises de la région ainsi qu’une vélo-station. Les quais sont agrandis afin de devenir un espace de vie à part entière.








Ce projet est celui d’une gare de campagne qui a vu son activité journalière s’intensifier au fur et à mesure que la ville se rapprochait. Le projet du pôle gare doit alors répondre à divers enjeux. Il dynamise le centre et accompagne la densification tout en conservant le caractère rural de son environnement.
La proposition s’inspire de l’architecture locale faite de gabarits modestes et de percées visuelles dans le but de s’intégrer au tissu villageois caractéristique de Satigny. Le projet s’inscrit dans une dynamique de renforcement des espaces verts et cordons boisés afin de créer une continuité biodiversitaire. Les surfaces imperméables sont réduites au maximum afin d’améliorer l’infiltration des eaux et le développement de la végétation
Également, les systèmes de mobilité sont prolongés et renforcés. L’arrivée des bus est repensée de façon à activer l’extrémité ouest du site sans créer de conflit avec la place de la gare. Celle-ci est activée par un bâtiment ruche proposant des activités multiples comme un commerce de proximité, des locaux pour les entreprises de la région ainsi qu’une vélo-station. Les quais sont agrandis afin de devenir un espace de vie à part entière.
affaire — n° 1924_SAT
procédure — Mandat direct
partenaire(s) — -
localisation — Satigny, GE
catégorie — Quartier et Voisinage
acronyme — Pôle Satigny gare
année — 2019
équipe — R.Niogret, T.Bolliger, N. Mongé, S. Hirtz, T. Laurans




Vues sur les quais de la gare de Satigny

Schéma, restitution végétal

Axonométrie programmatique

Schéma, restitution vie villageoise

Plan rez-de-chaussée

Façade





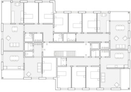
Plans, typologie

Bande-dessinée

Façades


Croquis, le quai rue



Essais volumétriques en maquette

Maquette finale

Plan PLQ