affaire — n° 1926_BEA
procédure — Concours sur invitation
partenaire(s) — Stratus
localisation — Neuchâtel, NE
catégorie — Quartier et Voisinage
acronyme — Quartier Beauregard
année — 2019
équipe — R. Niogret, T. Bolliger, N. Mongé, S. Hirtz, T. Laurans, J. Jobin, S. Schweyer, F. Helle, P. Fresse
QUARTIER BEAUREGARD
Le site est en pente, face au lac. La morphologie bâtie du projet prolonge les caractéristiques du tissu neuchâtelois. Les terrasses s’adaptent à la pente et ouvrent des percées visuelles vers le lac. le projet propose un espace de respiration. Afin de consolider l’enchaînement des espaces libres et définir un nouveau lieu de quartier avec les qualités du milieu vivant, les bâtiments sont finement implantés sur des terrasses. Un réseau de placettes leur donne accès et accueille les usages de la vie riveraine. L’espace de la rue n’est jamais cloisonné. Des passages, face à la pente, offrent des raccourcis à l’échelle du piéton.
La construction en brique monolithique est identique pour toutes les habitations. La variation architecturale entre les bâtiments s’exprime à travers les différences de crépis, de texture et de composition. Les fenêtres oblongues à la française sont dessinées également avec des variations : les pourtours, les stores et les volets alternent l’expression selon les immeubles. D’autres éléments tels que les porches d’entrées et les couverts extérieurs sont aussi traités de manière spécifique pour chaque bâtiment afin de répondre à leur contexte immédiat.








QUARTIER BEAUREGARD

Le site est en pente, face au lac. La morphologie bâtie du projet prolonge les caractéristiques du tissu neuchâtelois. Les terrasses s’adaptent à la pente et ouvrent des percées visuelles vers le lac. le projet propose un espace de respiration. Afin de consolider l’enchaînement des espaces libres et définir un nouveau lieu de quartier avec les qualités du milieu vivant, les bâtiments sont finement implantés sur des terrasses. Un réseau de placettes leur donne accès et accueille les usages de la vie riveraine. L’espace de la rue n’est jamais cloisonné. Des passages, face à la pente, offrent des raccourcis à l’échelle du piéton.
La construction en brique monolithique est identique pour toutes les habitations. La variation architecturale entre les bâtiments s’exprime à travers les différences de crépis, de texture et de composition. Les fenêtres oblongues à la française sont dessinées également avec des variations : les pourtours, les stores et les volets alternent l’expression selon les immeubles. D’autres éléments tels que les porches d’entrées et les couverts extérieurs sont aussi traités de manière spécifique pour chaque bâtiment afin de répondre à leur contexte immédiat.
affaire — n° 1926_BEA
procédure — Concours sur invitation
partenaire(s) — Stratus
localisation — Neuchâtel, NE
catégorie — Quartier et Voisinage
acronyme — Quartier Beauregard
année — 2019
équipe — R. Niogret, T. Bolliger, N. Mongé, S. Hirtz, T. Laurans, J. Jobin, S. Schweyer, F. Helle, P. Fresse

Plan masse

Schéma, Parcs et traverses

Schéma, Espaces publics

Vue depuis une placette

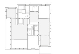
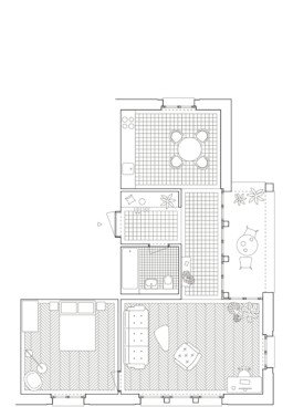
Plan rez-de-chaussée






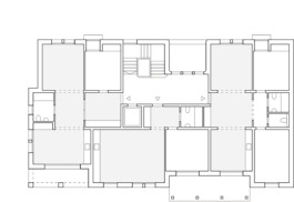
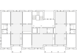
Etages types

Façade

Vue intérieure, chambre côté Avenue Edouard-Dubois

Vue intérieure, espace de vie traversant, vue sur le lac

Façade

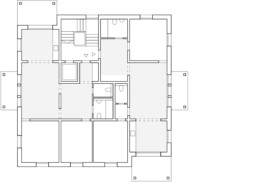
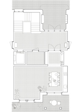
Plan, hall d’entrée - espaces communs

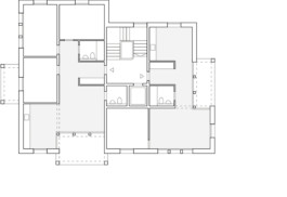
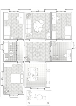
Appartement 4.5 pièces

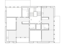
Appartement 2.5 pièces

Coupe

Coupe constructive